440 Huntingdon Tier Road, Bagdad
House
Is this the Home you have been Dreaming of?
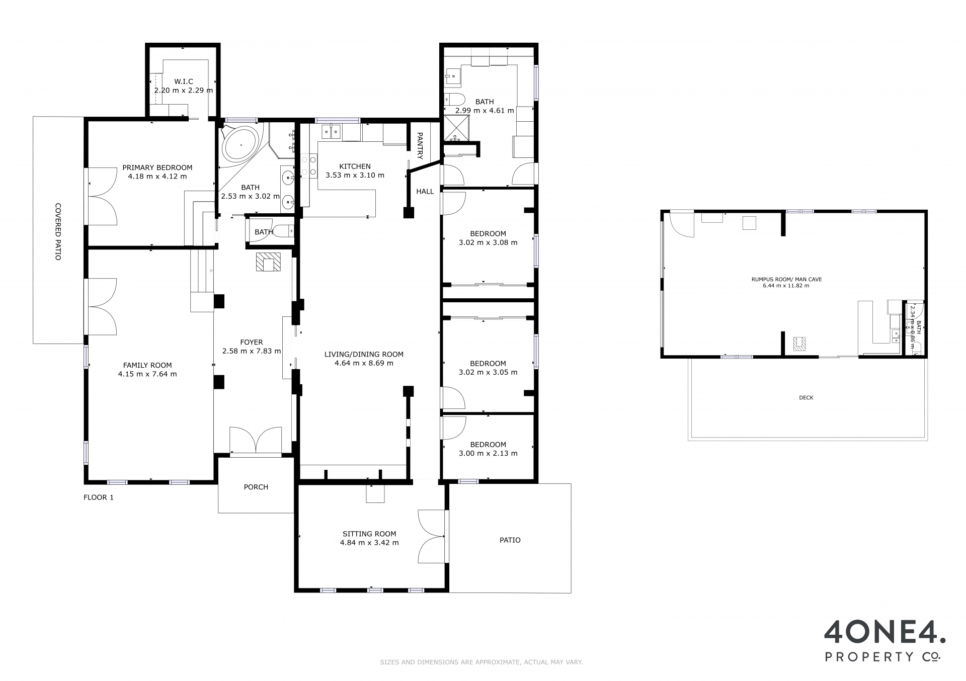
The grand entrance is just the start of this property journey. The ceilings are high and the walk ways are wide; perfect to show off a collection of treasured pieces.
Light filled and large, the formal living area is a space for everyone to enjoy. Heated by a Scandia wood heater to take the chill of during winter months.
The master retreat offers a great separation of space with walk-in robe, glass sliding doors and outdoor access, as well as a nearby bathroom. With double shower, corner spa and separate toilet, this room is nothing short of a show stopper.
The heart of the home follows. This stunning, open planned (second) living, dining and kitchen presents the growing family or entertainers alike unlimited options (there is a heat pump too!). A sleek and impressive kitchen is ample in proportions, features stainless appliances including dishwasher, a four-seat breakfast bar and walk-in pantry.
The architecture within this zone is simply divine and is a massive feature of this space.
Offering four bedrooms, the accomodation wing is up next. Two provide built-in storage, one is a great sized study and the other could be utilised as a media room.
Doubling as a laundry, the family bathroom comprises of a shower, toilet, multiple storage options and access to the outdoors.
But wait there's so much more!!! Outside is enough to send anyone into garage heaven! At the back of the property there is a 12x6m carport and garage then adjacent to the home, two more double garages! The second has been transformed into a mancave with bar, wood heater, toilet and sundeck. This zone is sure to consume many hours of your time and will of course be the envy of all your mates!
Rates: $1175.00 PA
Rental Appraisal: $600.00 PW
Zoning: Environmental Living
Water: Tank (24+15L) / Sewer: Septic
Disclaimer:
All care has been taken by 4one4 Real Estate and 4one4 Media House when compiling the marketing material and information in this presentation. We cannot guarantee the accuracy of any measurement or details supplied in this advertisement and make no representation or accept any responsibility for the whole or part of this advertisement.
The particulars contained in this advertisement do not form any contract. We recommend that any interested parties should have the information independently verified and make their own enquires to satisfy themselves in all respects.
All photos, video and marketing material remain the property of 4one4 Media House, a division of 4one4 Real Estate, and are not to be downloaded and used for any purpose without the express consent and written permission of 4one4 Real Estate.
Sold
$ 870,000
- 5
- 2
- 9
-
188 sqm
-
8.98 Acres
-
$1175.00 Per Annum
Downloadable Documents
Make an Enquiry.
Get your free suburb report.
Learn more
Contact Agents
Brooke Hall
Business Development Manager
Similar Properties.
Find your next property with 4one4

