2 Rodman Court, GLENORCHY
Unit
A Peaceful Lifestyle meets Quality Investment
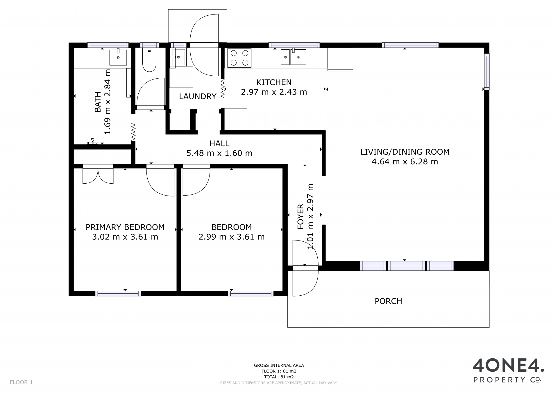
Positioned back from the street and on a level well maintained block of 304sqm, the unit features a large spacious open plan living area with air conditioner and a galley style kitchen with stainless appliances joining the laundry.
Both bedrooms are of good size with the master providing built-in storage and the neat and tidy bathroom is wheelchair friendly with open shower and separate toilet.
The backyard is a great size, completely low maintenance and fully fenced perfect for children and pets with a garden shed for storage. There is a single carport on title and ample parking for visitors on the street.
Offering a peaceful lifestyle, just a hop, skip and a jump away from the services and conveniences of Glenorchy Central and Northgate Shopping Centre, a 15-20 minute drive to the Hobart CBD and close proximity to many eateries, schools and public transport stops.
This property is currently tenanted at $380.00 per week until August 2022 but may also suit first home buyers and downsizers who are willing to wait. For investors, there is opportunity for increased rent ($400.00 P/W approx.)
Council Rates: $1550.00 PA
Disclaimer:
All care has been taken by 4one4 Real Estate and 4one4 Media House when compiling the marketing material and information in this presentation. We cannot guarantee the accuracy of any measurement or details supplied in this advertisement and make no representation or accept any responsibility for the whole or part of this advertisement.
The particulars contained in this advertisement do not form any contract. We recommend that any interested parties should have the information independently verified and make their own enquires to satisfy themselves in all respects.
All photos, video and marketing material remain the property of 4one4 Media House, a division of 4one4 Real Estate, and are not to be downloaded and used for any purpose without the express consent and written permission of 4one4 Real Estate.
Sold
$ 450,000
- 2
- 1
- 1
-
89 sqm
-
304 sqm
-
$1550.00 PA
Downloadable Documents
Make an Enquiry.
Get your free suburb report.
Learn more
Contact Agents
Similar Properties.
Find your next property with 4one4

