206 Risdon Road, LUTANA
House
Impressive Home In An Esteemed Location
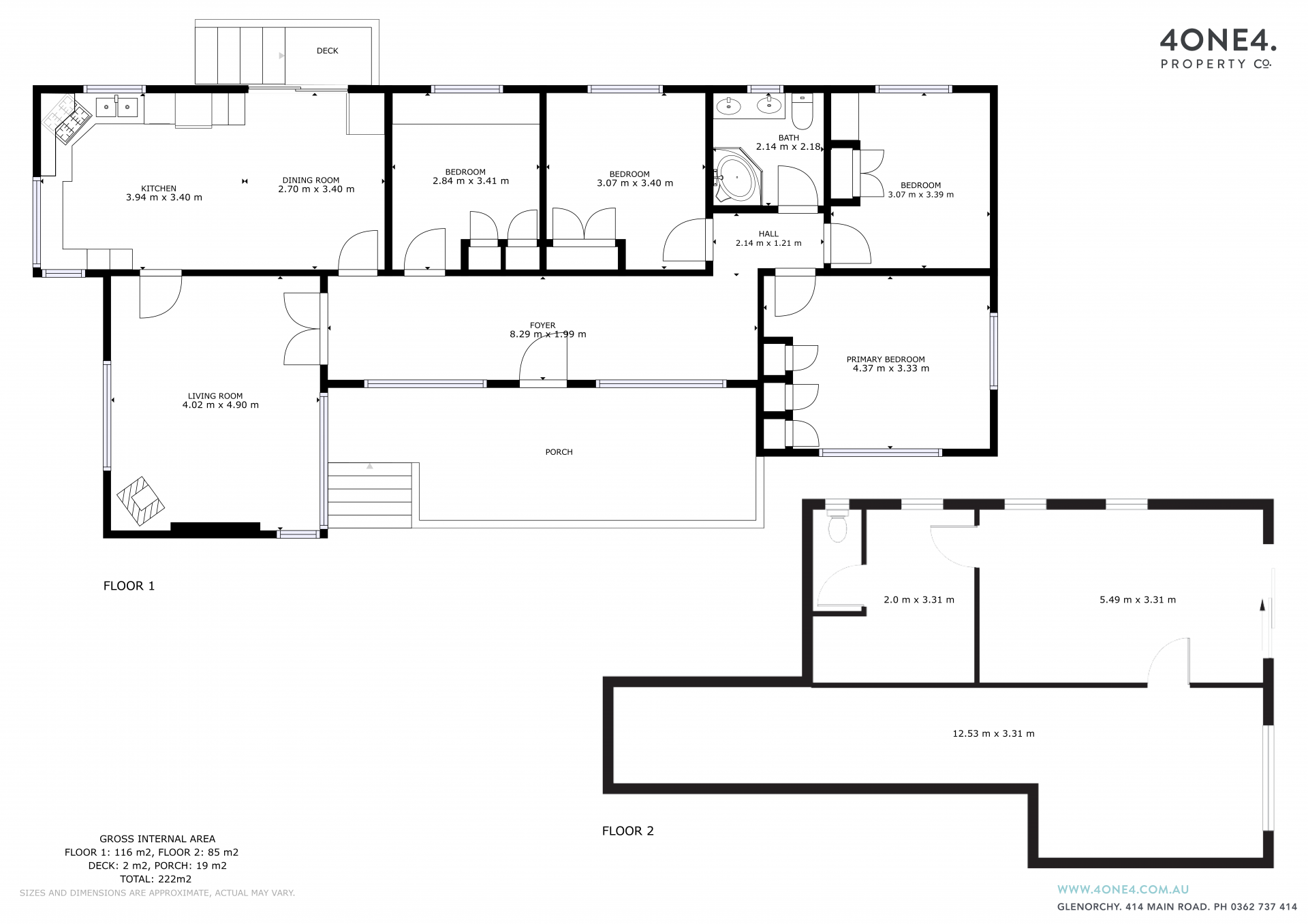
This lovely home is currently leased until January 2024 with excellent tenants. Arriving at the property you'll be delighted with the recent painting on the exterior and fence. Upon entry you're greeted with a large sun drenched entry hall leading to all rooms, to the left is the formal living room through double glass doors and is climate controlled by reverse cycle air conditioning as well as a wood heater ensuring all year comfort. The spacious well equipped dine-in kitchen offers plenty of cupboard & bench space and has sliding door access to the rear of the home where you'll find an abundance of extra storage both underneath and via a handy little shed. There are 4 good size bedrooms all with built-in robes, perfect for a growing family and popular with investors. The bathroom & toilet is positioned central to the bedrooms.
Outside offers two driveways perfect for the boat & trailer, a lovely fully fenced yard giving you a secure space for children and your furry friends to play. Underneath features a great space for tinkering around on your hobbies, its large and secure, and you'll also find the laundry plus a very handy 2nd toilet as well, all with power & lights. All fixtures throughout the house and including the roof & guttering are in excellent condition, but It really is about the location with this beautiful home. Stroll to local waterfront & parks, shops & cafe's and there's even a golf course within an easy pitching wedge from your front door! For more information, give Martin a call today.
Disclaimer:
All care has been taken by 4one4 Real Estate and 4one4 Media House when compiling the marketing material and information in this presentation. We cannot guarantee the accuracy of any measurement or details supplied in this advertisement and make no representation or accept any responsibility for the whole or part of this advertisement.
The particulars contained in this advertisement do not form any contract. We recommend that any interested parties should have the information independently verified and make their own enquires to satisfy themselves in all respects.
All photos, video and marketing material remain the property of 4one4 Media House, a division of 4one4 Real Estate, and are not to be downloaded and used for any purpose without the express consent and written permission of 4one4 Real Estate.
Sold
$ 635,000
- 4
- 1
- 3
-
120 sqm
-
476 sqm
-
$1900 per annum
-
$1200 per annum
Make an Enquiry.
Get your free suburb report.
Learn more
Contact Agents
Similar Properties.
Find your next property with 4one4

