2082 Gordon River Road, NATIONAL PARK
House
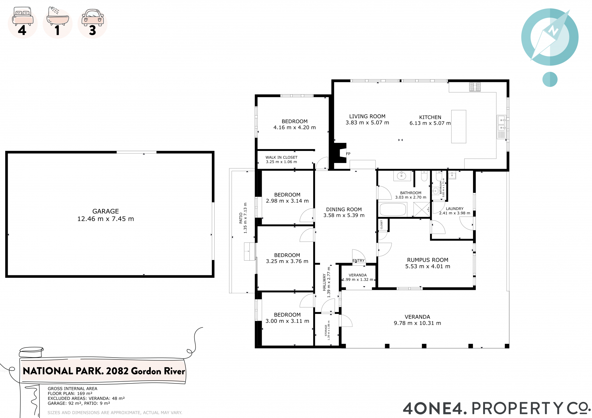
River Front Beauty
Take a step outside to take in the stunning natural attractions, with the Tyenna River on the back door step, where you can hear the water flowing, watch the trout swim by or hook one on the line and occasionally meet the local wildlife such as platypuses, possums, echidna's, etc and is ideal for those who love the outdoors as the property sits on 1.55ha of spacious land, providing an excellent space for children to play or for hosting family gatherings. The property boasts secure parking with one carport and six car garage, making it perfect for car enthusiasts or those with a need for extra storage.
Located close to local Westerway primary school, coffee shop, Roadhouse and tourist attractions including Mount Field National Park, Maydena Bike Track and Westerway Raspberry Farm, this home ensures that all essential amenities are within easy reach with only a 30 minute drive to New Norfolk or 1 Hour to Hobart.
Don't miss your chance to own a piece of this serene community and a beautiful home. Act now and make this charming home yours today by calling me to take in this beautiful part of the world.
Disclaimer:
All care has been taken by 4one4 Real Estate and 4one4 Media House when compiling the marketing material and information in this presentation. We cannot guarantee the accuracy of any measurement or details supplied in this advertisement and make no representation or accept any responsibility for the whole or part of this advertisement.
The particulars contained in this advertisement do not form any contract. We recommend that any interested parties should have the information independently verified and make their own enquires to satisfy themselves in all respects.
All photos, video and marketing material remain the property of 4one4 Media House, a division of 4one4 Real Estate, and are not to be downloaded and used for any purpose without the express consent and written permission of 4one4 Real Estate.
Sold
$ 720,000
- 4
- 1
- 11
-
180 sqm
-
1.55 ha
-
$2150 per annum
-
$1200 per annum
Make an Enquiry.
Get your free suburb report.
Learn more
Contact Agents
Similar Properties.
Find your next property with 4one4

