39 Melissa Street, BRIGHTON
House
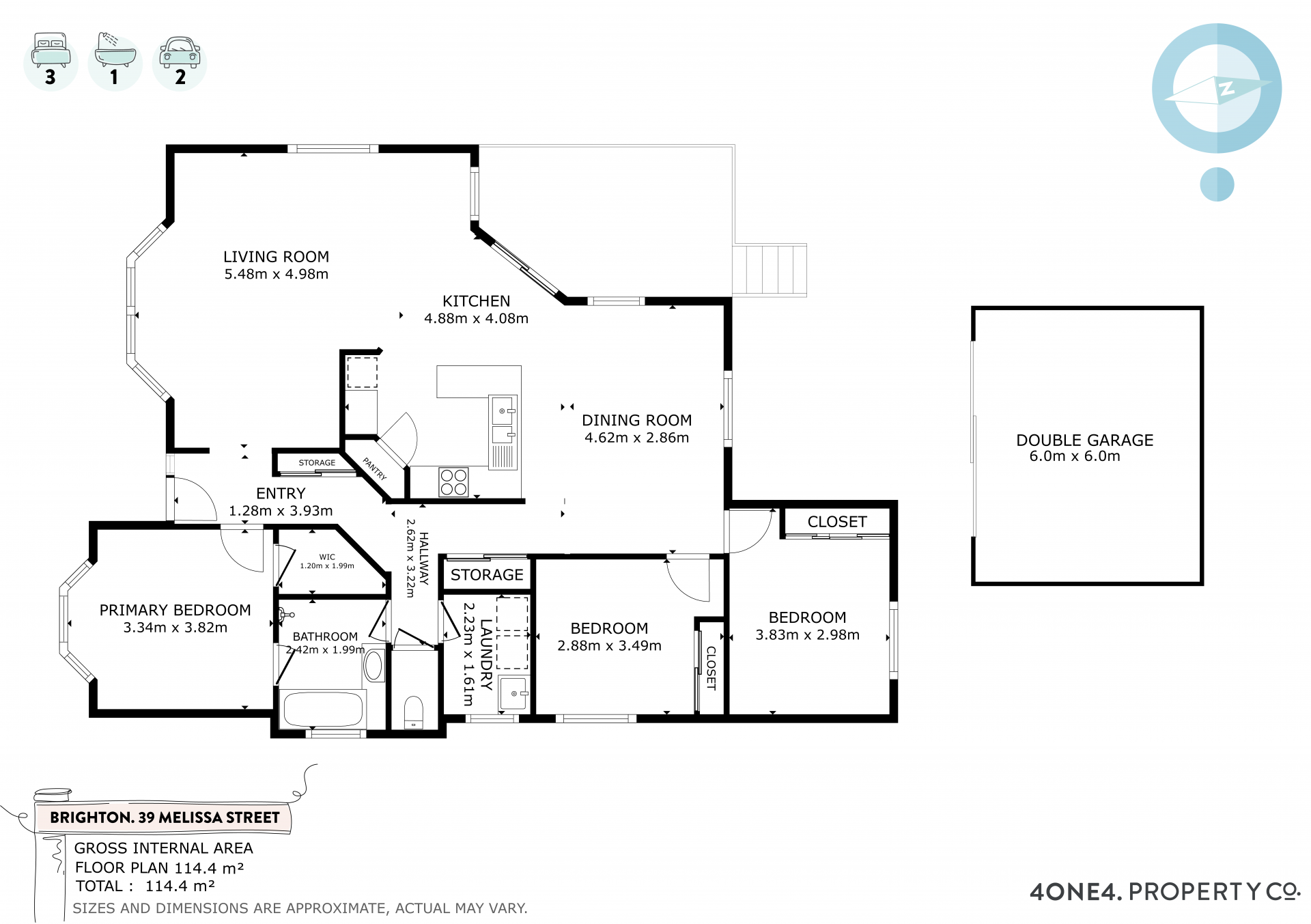
There's Space For Everyone
Step inside through the undercover level entry, and you're immediately greeted by a light-filled open-plan living area with floor-to-ceiling windows, creating a warm and inviting space. The kitchen and dining area is generously sized, offering plenty of storage, bench space, and room for a large dining setting—perfect for family dinners or entertaining. Plus, there's direct access to an undercover outdoor entertaining area, where you can relax and enjoy the private backyard.
Down the hallway, you'll find three well-sized bedrooms with built-in robes. The main bedroom boasts a walk-in robe and private access to a modern three-piece bathroom. Other fantastic features include a neutral modern colour palette, quality flooring, and reverse-cycle heating, ensuring year-round comfort.
Outside, the large, secure backyard is ready for whatever you need—extra parking, a workshop, or even more entertaining space. The garage/workshop provides secure parking and storage, and the undercover BBQ area is the ultimate spot for weekend gatherings.
✨ Why Brighton?
This thriving suburb is one of Tasmania's fastest-growing communities, offering a perfect mix of essential services, parks, playgrounds, and exciting new infrastructure. And with Hobart's CBD just 35 minutes away, you're never far from the action.
Sold
$ 580,000
- 3
- 1
- 4
-
163 sqm
-
707 sqm
-
$1,650 pa
Make an Enquiry.
Get your free suburb report.
Learn more
Contact Agents
Similar Properties.
Find your next property with 4one4

