12 Redside Drive, Brighton
Acreage/Semi-Rural
5 acres of an envious lifestyle home.
This stunning lifestyle property is on just over 5 acres and an exceptional opportunity to become part of the fast-growing family community that is Brighton. It is perfect for growing family's (including the furry kind) or just lovers of space and privacy.
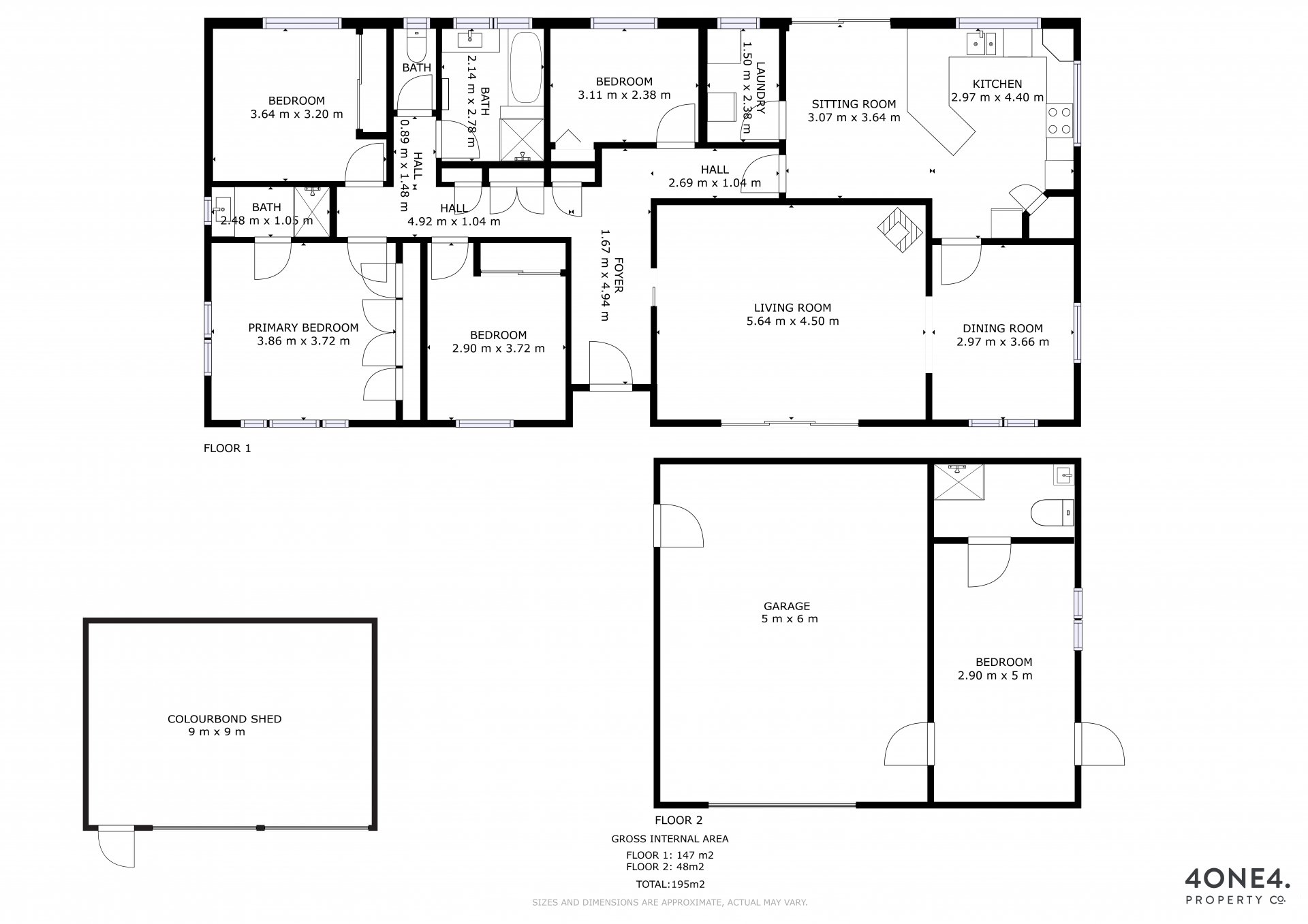
The substantial brick home is both impressive and solid. The top floor is the primary living space with everything easily located on one level. One side of the home boasts great valley views (in the distance you can see Mount Dromedary and further Mt Field) and the other side has views of the impressive low maintenance native garden and large windows to let the sun in year-round. All four bedrooms have built-ins and the master has an ensuite! The living and dining areas take full advantage of the views and the huge living room has a free standing wood heater providing the warmth and intimacy for the colder winter months. There is a large bathroom, separate toilet and an open plan kitchen that leads out to the native gardens and there you will find two stunning entertaining areas that are simply huge. Entertaining a large group of friends and family for a BBQ on a warm Sunday afternoon would be heaven!
Downstairs we have a fifth bedroom or teenagers retreat with its own bathroom, a large garage with an exceptional amount of of under house storage too. Alongside the home is a 2-vehicle car port and further away we have a nearly new separate 9x9 meter colour bond shed with its own power and a water tank.
One showpiece of this home really is the stunning land and at just over 5.1 Acres there is future potential for subdivision or just relax and enjoy it as it is. I know quite a few horses on a first name basis that would be envious. Approx. 2 acres surrounds the home with low maintenance native gardens, raised garden beds and an in-ground watering system. There are separate veggie beds, fruit frees, chicken run and dog run and even bee hives! The rest is fenced paddocks for all you furry friends (or the kids of course). A tractor can be negotiated.
This gorgeous home is solid and well-built in a great area providing confidence and security for any prospective owner now and into the future. It is situated down the end of a quiet no-through road on town water and all the normal council collections. Local development like the brand new 50 million Brighton High School and the upgraded Bridgewater bridge ensure future desirability. It is less than 5 minutes' drive to the shops, caffes, restaurants and coffee shops in Brighton, or the major supermarkets in Bridgewater. The revitalised Glenorchy shopping precinct or the historically significant Richmond is only 20 minutes away and Hobart CBD just over 30 minutes away. What an envious lifestyle so close to everything!
12 Redside Drive in Brighton is a rare opportunity and sure to impress. I look forward to showing you through this home.
Disclaimer:
All care has been taken by 4one4 Real Estate and 4one4 Media House when compiling the marketing material and information in this presentation. We cannot guarantee the accuracy of any measurement or details supplied in this advertisement and make no representation or accept any responsibility for the whole or part of this advertisement.
The particulars contained in this advertisement do not form any contract. We recommend that any interested parties should have the information independently verified and make their own enquires to satisfy themselves in all respects.
All photos, video and marketing material remain the property of 4one4 Media House, a division of 4one4 Real Estate, and are not to be downloaded and used for any purpose without the express consent and written permission of 4one4 Real Estate.
Sold
$ 900,000
- 5
- 3
- 13
-
160 sqm
-
2.1 ha
-
$1,300 approx per annum.
-
$1,000 approx per annum.
Make an Enquiry.
Get your free suburb report.
Learn more
Contact Agents
Similar Properties.
Find your next property with 4one4

