2 Amundsen Crescent, Warrane
House
Welcome to 2 Amundsen Crescent - A Family Oasis!
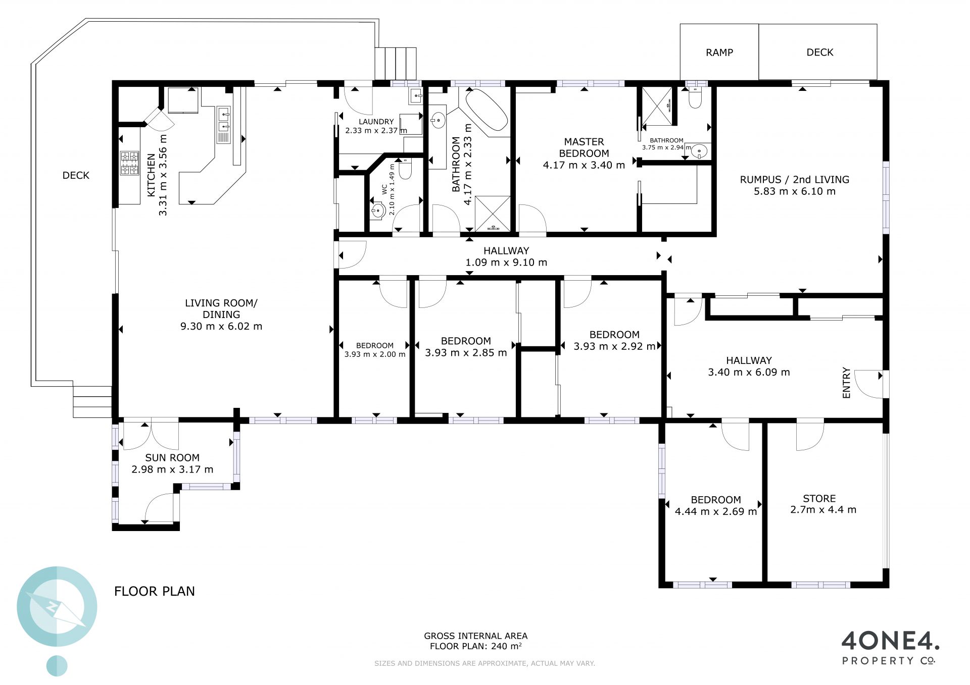
As you enter, you're greeted by a delightful sunroom, flooded with natural light and featuring double doors that beckon you into the heart of the home. Step into the open plan living, dining, and kitchen area—a vast space adorned with gorgeous vaulted ceilings, polished floorboards, and a soothing monochromatic color scheme. Illuminated by an abundance of natural light, this area stays cozy with the warmth from one of two efficient heat pumps. Seamless access to the wrap-around outdoor deck awaits through sliding doors, creating a perfect blend of indoor and outdoor living.
The kitchen, designed in a practical U-shape, boasts a convenient corner pantry, generous bench space, and a breakfast bar capable of seating 8-10 people. Adjacent to the kitchen, discover a well-appointed laundry room that leads to the outside, adding to the home's practicality and convenience.
Follow the connecting central hallway to discover four generously sized bedrooms, each offering comfort and space. The master suite is a true sanctuary with a desirable walk-in closet and a refurbished ensuite adorned in stylish black and grey tones. The family bathroom is a luxurious retreat featuring a deep soak spa bath, vanity, shower, and a separate powder room.
At the south end, an enormous second living area, adaptable as a guest room, invites you to relax. Sliding doors provide access to the garden, while an additional heat pump ensures comfort throughout the year. Discover the fifth bedroom, a convenient storage room, and a spacious second entry foyer—a perfect organization hub for shoes, coats, and school bags.
Step outside to a low-maintenance, fully fenced, and private yard adorned with mature trees and raised garden beds—a serene retreat for the whole family.
Perfectly situated, this family oasis is conveniently close to various schools, only 2 km from Eastlands shopping centre, and a short 8 km to the vibrant Hobart CBD.
This gorgeous home is ready for you to move in and start creating beautiful family memories. Don't miss out on the perfect package for families seeking extra space and a delightful lifestyle. Call us today for more information—we can't wait to guide you through your future home!
Disclaimer:
All care has been taken by 4one4 Real Estate and 4one4 Media House when compiling the marketing material and information in this presentation. We cannot guarantee the accuracy of any measurement or details supplied in this advertisement and make no representation or accept any responsibility for the whole or part of this advertisement.
The particulars contained in this advertisement do not form any contract. We recommend that any interested parties should have the information independently verified and make their own enquires to satisfy themselves in all respects.
All photos, video and marketing material remain the property of 4one4 Media House, a division of 4one4 Real Estate, and are not to be downloaded and used for any purpose without the express consent and written permission of 4one4 Real Estate.
Sold
- 5
- 2
- 2
-
240 sqm
-
645 sqm
-
$2000 per annum
-
$1200 per annum
Make an Enquiry.
Get your free suburb report.
Learn more
Contact Agents
Similar Properties.
Find your next property with 4one4

