27 Sophia Street, Kempton
House
For the Future
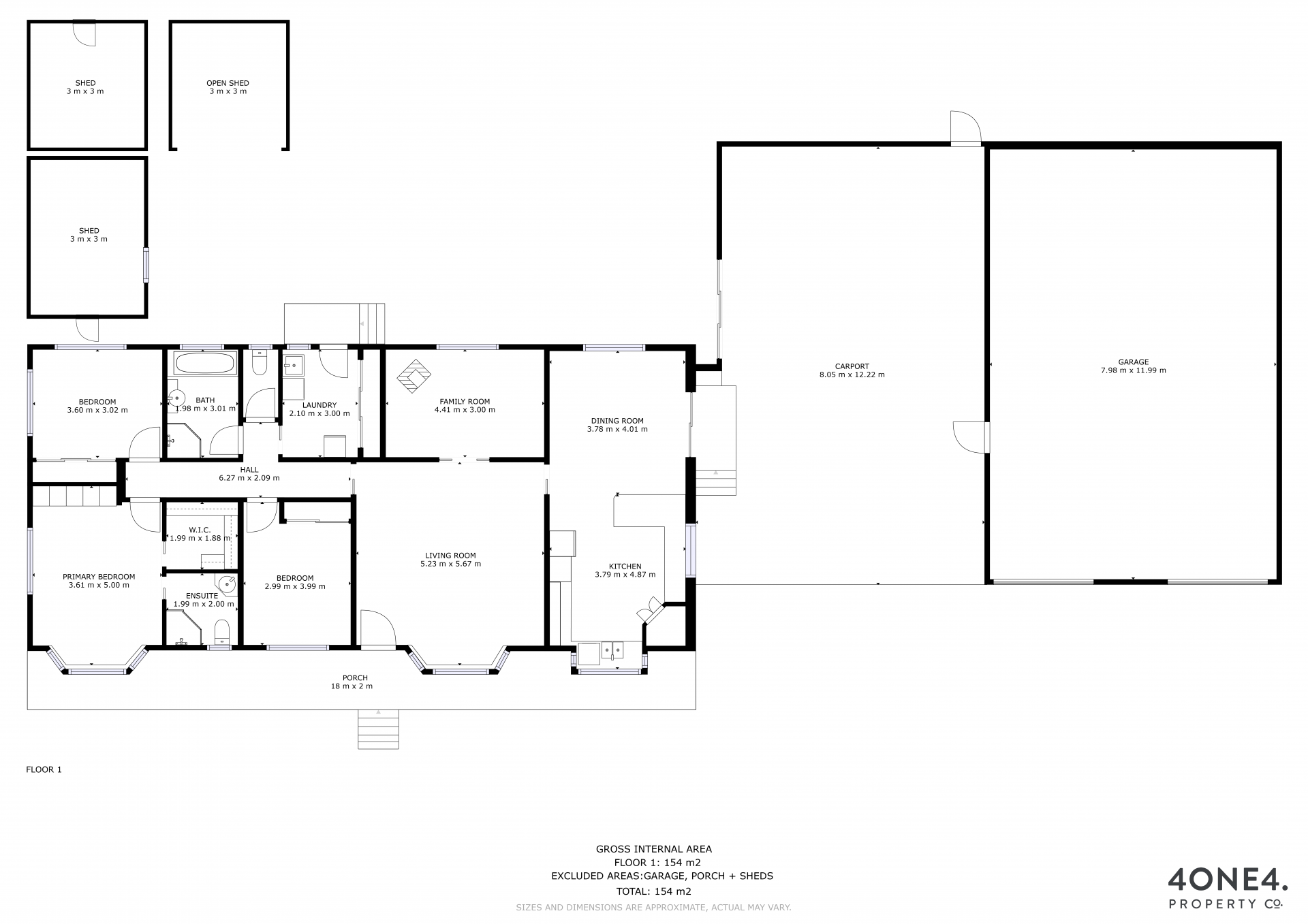
The presentation of this three-bedroom, two-bathroom home is warm, welcoming, and immaculate. The modern exterior of brick & neutral toned colour bond roof gives you peace of mind now and for the future. Parking in the driveway or in one of the many covered areas (Sheds + Carports) is extremely easy with well-presented low-maintenance gardens.
Nestled within the historic township of Kempton with its high prediction and evidence of growth. Boasting its own Whisky Distillery, local Pub, Post Office and close to schools and services; this property prospect could be yours! Being an approx. 44-minute commute to Hobart's CBD means you really can have the lifestyle you've been dreaming of...
* Low maintenance & private lifestyle property with all the features you could want
* Large garage/workshop and attached carport that provides covered access to inside
* Open kitchen & dining area with an abundance of cabinetry
* Large seperate living room and conected family room
* 3 bedrooms, all with built in storage and the main with walk in robe and ensuite
* Family bathroom complete with seperate shower and bath
* Reverse cycle aircon installed & wood fire with heat transfer kit to move the warmth throughout the entire home
* Level, low maintenance yards, with 3 garden sheds and on over 1,600m2 of land still gives plenty of room to breathe
Disclaimer:
All care has been taken by 4one4 Real Estate and 4one4 Media House when compiling the marketing material and information in this presentation. We cannot guarantee the accuracy of any measurement or details supplied in this advertisement and make no representation or accept any responsibility for the whole or part of this advertisement.
The particulars contained in this advertisement do not form any contract. We recommend that any interested parties should have the information independently verified and make their own enquires to satisfy themselves in all respects.
All photos, video and marketing material remain the property of 4one4 Media House, a division of 4one4 Real Estate, and are not to be downloaded and used for any purpose without the express consent and written permission of 4one4 Real Estate.
Sold
$ 610,000
- 3
- 2
- 6
-
162 sqm
-
1622 sqm
-
$1,504 Per Annum
Downloadable Documents
Make an Enquiry.
Get your free suburb report.
Learn more
Contact Agents
Similar Properties.
Find your next property with 4one4

