117 Mockridge Road, Clarendon Vale
House
Neat Investment
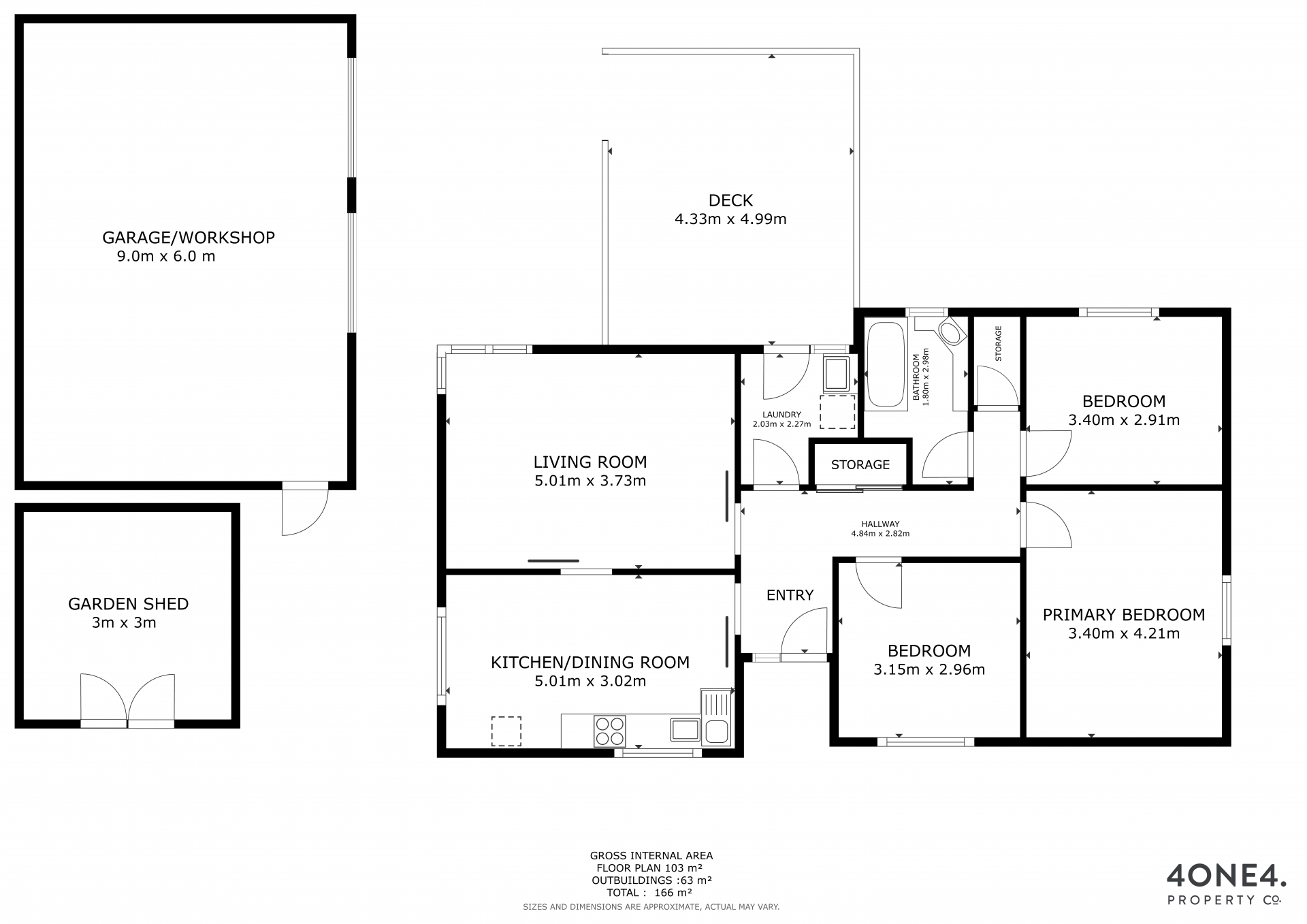
The property's features, including 3 bedrooms, 1 bathroom, a large fully fenced yard, and a double garage and entertaining area out back makes it attractive to potential tenants or homeowners. The proximity to essential services adds convenience and enhances its value.
For anyone looking to invest in real estate or expand their investment portfolio, this property seems like a promising opportunity. Call me today to secure this great investment.
Disclaimer:
All care has been taken by 4one4 Real Estate and 4one4 Media House when compiling the marketing material and information in this presentation. We cannot guarantee the accuracy of any measurement or details supplied in this advertisement and make no representation or accept any responsibility for the whole or part of this advertisement.
The particulars contained in this advertisement do not form any contract. We recommend that any interested parties should have the information independently verified and make their own enquires to satisfy themselves in all respects.
All photos, video and marketing material remain the property of 4one4 Media House, a division of 4one4 Real Estate, and are not to be downloaded and used for any purpose without the express consent and written permission of 4one4 Real Estate.
Sold
- 3
- 1
- 8
-
103 sqm
-
871 sqm
-
$1400 per annum
-
$1200 per annum
Make an Enquiry.
Get your free suburb report.
Learn more
Contact Agents
Similar Properties.
Find your next property with 4one4

