1 Surada Place, Glenorchy
House
Your Next Chapter Starts Here
As you step inside, the blend of elegance and practicality is immediately apparent. Originally built in 1981, this home has had a thoughtful and tasteful renovation creating the perfect space for modern living. The open-plan living area, adorned with natural light, sets the stage for memorable moments with loved ones and leads through to the meticulously designed kitchen, reflecting a commitment to quality and comfort.
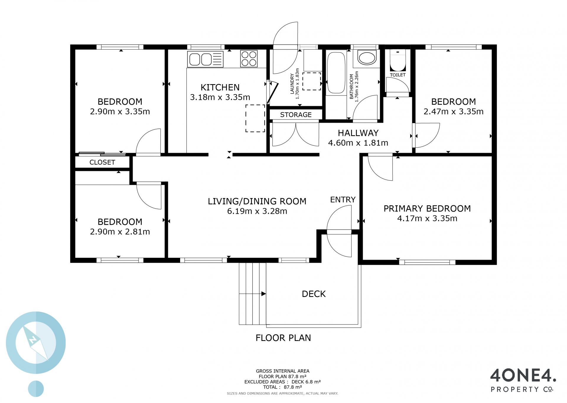
More than meets the eye, this home is adorned with 4 bedrooms to accommodate the growing family. Plenty of space for everyone to retreat to their own private sanctuary as well as spend time with loved ones in the common areas. The updated bathroom contains a Bath and over-bath shower.
Fully fenced, so perfect for four-legged family members, 1 Surada Place is also one that benefits from stunning views year-round. Step out into the backyard to take in a daily panorama that encapsulates the Derwent river.
Priced attractively below $600,000, 1 Surada Place is not just a dream come true for those seeking style and comfort; it's also a golden opportunity for those first-home buyers looking to get into the market. This pricing ensures eligibility for the first home-buyers stamp duty rebate, making this stunning home an even more appealing prospect. Embrace the chance to step into your new life in Glenorchy with significant savings, thanks to this thoughtful pricing strategy.
1 Surada Place is more than just a house; it's a home waiting to be filled with new stories, laughter, and memories. If you're looking for a blend of lifestyle and convenience, your search ends here. Contact Laurie Gray at 4one4 Property Co. today to arrange a viewing and take the first step towards your dream home.
Disclaimer:
All care has been taken by 4one4 Real Estate and 4one4 Media House when compiling the marketing material and information in this presentation. We cannot guarantee the accuracy of any measurement or details supplied in this advertisement and make no representation or accept any responsibility for the whole or part of this advertisement.
The particulars contained in this advertisement do not form any contract. We recommend that any interested parties should have the information independently verified and make their own enquires to satisfy themselves in all respects.
All photos, video and marketing material remain the property of 4one4 Media House, a division of 4one4 Real Estate, and are not to be downloaded and used for any purpose without the express consent and written permission of 4one4 Real Estate.
Sold
$ 535,000
- 4
- 1
- 2
-
102 sqm
-
620 sqm
-
$1842 per annum
-
$1200 per annum
Make an Enquiry.
Get your free suburb report.
Learn more
Contact Agents
Similar Properties.
Find your next property with 4one4

